- フジ設計企画 トップページ
- 新築一戸建てをエリアから探す
- 千葉市稲毛区
- 稲毛町
- フジイエ新検見川・稲毛~緑と潤いのある街~





より良いお住まいをお客様へご提案させて頂きます。
<室内写真は7号棟です。>
■新築区画 7号棟 ※3号棟
開放的なリビングと小上り和室、石畳のようなお庭に家族の笑顔が集まる家
ZEH基準の断熱等級6と省エネ性能6&耐震等級3取得の安心のマイホームです。
■自由設計対応区画もございます。
JR総武線徒歩15分圏内!複数路線利用可能で都内へも出やすく湾岸ベイエリアも生活圏。
敷地面積も約33坪~約43坪!区画によっては、2台駐車も可能。
広々した道路付けと区画整理された街並みが魅力の稲毛町です。
「家づくり」という人生に一度の体験「自由設計」でお好きなようにマイホームを建てる事が可能です。
ZEH基準の断熱等級6と省エネ性能6&耐震等級3取得の安心のマイホーム+「家づくり」というかけがえのない体験を!!
要予約、即日見学可能!!
現地と同施工例建物を実際にご覧頂く事が可能です。
オール樹脂サッシ、電動シャッター、深型の食洗機、カップボード食器棚等々、フジイエ充実の建物仕様設備。
※標準設備以外もご相談下さい!
実際に建てている顔が見える家、フジイエは、地元地域密着でアフターフォローを主に40年!やっているからこそ、より良いお住まいをお客様へご提案させて頂きます。
すべての画像
リビングダイニングは16.4帖+約3帖の小上り畳コーナーと広さと快適さを備えた家族が集まれるスペース。 断熱等級6、一次エネルギー消費量等級6を取得しており、住まわれてからが違います。
7号棟・外観室内共に完成いたしました。おしゃれな外観です。耐震等級3を取得した地震にも強い家。実際の現地で区画整理された街並みと一緒にご見学可能ですので、お気軽にお問合せ下さい。
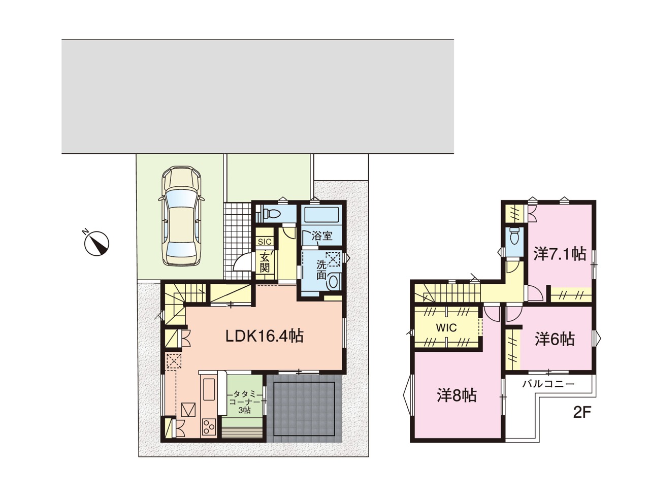
7号棟・間取図です。 3LDK(リビングの一部に小上り和室) 豊富な収納と石畳風のお庭。家族のコミュニケーションが取れるリビングin階段です。
前面道路は安心の公道・幅員も約9mとゆとりの広さ。区画整理された街並みで歩道も整備されております。都内への利便性高い、JR総武線「新検見川駅」まで徒歩15分の立地に、耐震性・断熱性の高い安心で快適なお住まいを間取からお打合せ可能な自由設計対応区画もございます。
『フジイエ新検見川・稲毛』全7区画のイメージパースです。区画整理された街並みに建つ、家族が健やかに過ごせるマイホームになるかと思います。今なら自由設計も対応可能ですので、ぜひ「家づくり」という体験をされてみてください!!ご家族様のご希望が叶います。
フジイエ新検見川・稲毛は全7区画の分譲地です。 分譲地周辺は、区画整理された街並みで、道路・歩道もしっかりと整っており安心。
3号棟・間取図です。 3LDK(リビングの一部は小上りのスタディコーナー) 奥様も喜んで頂ける家事導線のあるパントリー収納。家族のコミュニケーションが取れるリビングin階段です。
現在基礎工事中の3号棟です。東南側が隣地駐車場につき、奥の区画で有ながら陽当り良好!ぜひ実際の現地でご確認下さいませ。
奥行きのある駐車スペースは縦列にはなりますが、2台駐車も楽々です。玄関から道路まで距離がありますので、お子様が飛び出す心配も少なく安心です。
フジイエ新検見川・稲毛 全7区画。 3号棟・7号棟は新築区画 上記以外は、自由設計対応の区画です。自由設計の詳しい詳細につきましては、ぜひお気軽にお問合せ下さい。
玄関階段には手すりも付いて安心・安全。郵便ポストには不在の際にも荷物の受取が安心の「宅配BOX」付。
石畳風に仕上げるお庭で、土汚れもなく、夏にはプール、カフェテラス風のプライベート空間など多様にご利用頂けると思います。夜にはスポットライトが幻想的な空間を演出してくれることと思います。
フジイエ新検見川は耐震等級3を取得しており地震に強い安心なお住まい。設計住宅性能評価・建設住宅性能評価を取得しており、設計段階から建設段階まで第三者機関の客観的な検査による品質・安全性を担保。万一のトラブル時には専門機関のサポートも利用でき、将来的な資産価値の維持にもつながります。
フジイエの家は、全棟がZEH基準を超える断熱等級6級でエネルギー消費量も少ない、お財布に優しいお住まいです。設計住宅性能評価・建設住宅性能評価を取得しております。設計段階から建設段階まで第三者機関の客観的な検査による品質・安全性を担保。
リビングダイニングは16.4帖+約3帖の小上り畳コーナーと広さと快適さを備えた家族が集まれるスペース。 断熱等級6、一次エネルギー消費量等級6を取得しており、住まわれてからが違います。
キッチンは深型食洗機、ガラストップコンロ、ソフトクローズ機能のスライドキャビネット、整流板付きレンジフード、など毎日の家事の負担を軽減する充実設備をご用意しております。背面にはカップボード食器棚付き。
深型タイプで使い勝手のよい「食器洗い乾燥機」付。他にも調理の際に便利なクッキングコンセントから、掃除も楽々ガラストップコンロ、浄水機能付きの水栓など、家事の負担をサポートする充実の仕様のキッチンです。
キッチン背面には、専用のカップボード隣には、上部にパントリー収納スペース又、下部にはゴミストッカー置場と住まわれた際に役立つ収納をご用意しております。
キッチン前には、ちょっと横になってお昼寝をしたり、時にはワークスペースとして使えるよう専用棚を設置した窓からはお庭を見渡せる小上り和室がございます。
LDKには広さ+収納力。使い分けができる2つの収納をご用意しました。毎日の生活用品から、お子様の道具などたっぷりと収納頂けます。
リビングの顔となる入口には、ワンランク上の色合いが人気のラシッサD扉。TV横にはちょっとした飾り棚、右には石畳のお庭が見渡せる住まう人だけの特別な空間に。
手入れがしやすく保温効果も高い人工大理石の浴槽が標準仕様の浴室。梅雨や冬場に活躍する暖房換気乾燥機や手すり付き。 壁面はマグネット対応で、お好みで鏡や棚が付けられるようになっており、お掃除も楽になります。
洗面所は3面鏡付きの90センチの幅広タイプ。3面鏡にLED照明付き。収納部分は使いやすい引出しタイプを採用しております。側面にはタオル類を収納できる便利な可動棚収納もございます。
1階、2階とも節水機能・ウォシュレット付きトイレです。他には、Wペーパーフォルダー・サニタリー収納・タオルリング付。
家具配置もしやすい正方形に近い主寝室はゆとりの8帖+WIC。 バルコニーに面した朝日が差し込む寝室です。
2階8帖の主寝室には、大容量収納のWICがございます。向かい合ったハンガーパイプとなっておりますので、御夫婦で使い分けが可能です。
暗くなりがちな階段部分も窓からの光が明るい場所に。すりガラスで道路側からの見えることなくプライバシーも安心です。
2階の各居室は2面採光で明るく通風も良好です。オープン型のクローゼットでお部屋全体を有効活用でき、広くお使い頂けます。
南向きで陽当りも良好なバルコニー。3段階で高さ調節が可能な物干しフックで周囲からプライバシーも安心です。
フジイエの窓は、冬場に結露もしにくい樹脂複合サッシに、断熱効果もあるエコLow-Eガラス、アルゴンガス入りで外の冷気や家の温度を守ります。
1階の主窓には電動シャッターが付いており、天気が悪い日でも、窓を開けずにボタン一つで楽々開閉。 開閉の際に腰を痛めることなく負担なく、あると便利な設備の一つです。
フジ設計企画はちょっとしたこだわりで角を丸く仕上げております。お子様にも安心ですし、優しい雰囲気が出るかと思います。ぜひフジイエの魅力をご確認ください。
物件詳細情報
物件No.20000430447
| 所在地 | 千葉県千葉市稲毛区稲毛町5丁目 | ||
|---|---|---|---|
| 交通 | 総武線「新検見川」駅徒歩15分 京成千葉線「京成稲毛」駅徒歩17分 京葉線「稲毛海岸」駅徒歩28分 |
||
| 間取 | 3LDK~3LDK | ||
| 土地面積 | 110m² ~ 142.62m² 実測 | ||
| 建物面積 | 98.86m² ~ 99.15m² | ||
| 販売戸数 | 2戸 | 総戸数 | 全7戸 |
| 構造・規模 | 木造 2階建て | 築年・入居 | 2026年5月下旬 |
| 建物現況 | 建築中 | 建築確認番号 | 第25UDI1C建05104号 |
| 引渡時期 | 相談 | 施工会社 | 株式会社フジ設計企画 |
| 地目 | 宅地 | 用途地域 | 第一種低層住居専用地域 |
| 建ぺい率 | 50% | 容積率 | 100% |
| 都市計画 | 市街化区域 | 権利種類 | 所有権 |
| 接道 | 北東側9M公道に接道 北西側16M公道に接道 |
小学校区 | 稲毛小学校(880m) |
| 中学校区 | 稲毛中学校(560m) | 取引態様 | 売主 |
| 設備 | 公営水道、本下水、都市ガス フジイエの主な標準設備:1階掃出し窓電動シャッター、防犯ガラス(1Fの一部)、樹脂サッシ+ペアガラス(ガス入)、全窓網戸、TVモニター付インターホン、システムキッチン、ガラストップコンロ、浄水器内蔵ハンドシャワー水洗、食器洗い乾燥機、カップボード、浴室暖房乾燥機、人工大理石浴槽、1F・2Fウォシュレット付きトイレ、ECOジョーズ給湯器他 |
||
| 省エネ性能表示 | エネルギー消費性能:★★★★ 断熱性能:6段階 |
||
こだわり項目
- ※価格は物件の代金総額を表示しており、消費税が課税される場合は税込み価格です。(1,000円未満は切り上げ。)
税率は引き渡し時期により異なりますので、各物件の詳細につきましてはお問い合わせください。 - ※敷地権利が借地権のものは価格に権利金を含みます。
- ※制作中に内容が変更される場合もありますので、あらかじめご了承ください。
- ※購入の前には物件内容や契約条件についてご自身で十分な確認をしていただくようにお願いいたします。
- ※完成予想図はいずれも外構、植栽、外観等実際のものとは多少異なることがあります。
- ※CG合成の画像の場合、実際とは多少異なる場合があります。
周辺地図
- 現地販売会
- 毎週土日祝開催 11:00〜17:00 事前に必ずお問い合わせください
周辺施設一覧
- ショッピングセンター
- スーパー
- コンビニ
- ドラッグストア
- ホームセンター
- 飲食店
- その他店舗
- 商店街
- 大学
- 専門学校
- 高校・高専
- 中学校
- 小学校
- 保育園
- 幼稚園
- 公民館・児童館
- 病院
- 郵便局
- 役所
- 図書館
- 金融機関
- 警察・消防
- 趣味・娯楽施設
- 公園・運動施設
- 周辺の街並み
- 駅
- その他
お問い合せ先
- 株式会社フジ設計企画
- お電話でのお問い合わせは
047-469-1800「ホームページを見た」とお問い合わせください - 千葉県船橋市西習志野4-12-12
- 免許番号:千葉県知事免許(8)第11427号
- フジ設計企画 トップページ
- 新築一戸建てをエリアから探す
- 千葉市稲毛区
- 稲毛町
- フジイエ新検見川・稲毛~緑と潤いのある街~





























