- フジ設計企画 トップページ
- 新築一戸建てをエリアから探す
- 鎌ケ谷市
- 鎌ケ谷
- フジイエ鎌ケ谷 家族みんなが一つになる家・全8区画の分譲地





設計から施工まで一貫した体制で、地元地域密着でアフターフォローを主に40年!
より良いお住まいをお客様へご提案させて頂きます。
行政の許可を受けた開発分譲地のため、地盤の安全性や法的基準が守られているのが魅力です。
■道路や上下水道、電気・ガスなどのインフラが新しく整備されているため、快適な生活環境。
■統一感のある美しい街並み。
■通り抜けができない道路ですので、第三者の侵入も少なく安心で快適な住環境。
■道路幅が5mと広く設計されているため、車の移動や駐車がしやすく、歩行者にも優しい環境。
■新しく入居する住民が多いため、ご近所同士の交流が生まれやすく、安心感のある暮らしが実現。
フジイエの家は、
設計・建設性能評価書付きZEH基準の断熱等級6と省エネ性能6&耐震等級3取得の安心のマイホーム。
【間取プランからお打合せ可能な自由設計区画もございます!】
オール樹脂サッシ、電動シャッター、深型の食洗機、カップボード食器棚等々、フジイエ充実の建物仕様設備。
※標準設備以外もご相談下さい!
【オンリーワンのマイホームを建築可能】
開発分譲地は計画的に整備されているため、快適で安心な住環境を提供します。自由設計のメリットを活かして、自分好みの住まいを実現できるのが魅力です!
■敷地面積42坪超の整形地。プランによっては2台駐車も可能な広さが魅力です。
■最寄り駅まで徒歩5分の駅近分譲地で、通勤・通学にも大変便利な駅近。
■商業施設、スーパー銭湯も徒歩圏内!緑豊かな公園も多く、ジョギングや散歩など健康的なライフスタイルを楽しむことができます。
※フジイエのモデルハウス見学可能です。
平日、土・日とご見学頂けます。(※平日のご見学は事前に御連絡下さい。)
ぜひお気軽にフジ設計企画までお問い合わせください。
すべての画像
自由設計でお打合せをしたお住まいが続々と建築されており、建売区画も含め少しづつですが、街並みも見えるようになってきました。 駅近の分譲地で利便性も高い立地に理想のお住まいを♪
敷地面積42坪超~の分譲地。いよいよ残す区画も最終2区画です。 ZEH基準相当の断熱性、省エネ性能、安心の耐震性能。詳しい詳細につきましては、ぜひお気軽にお問合せ下さい。 ※ゴミ置場、電柱用地、分譲地内道路は鎌ケ谷市へ帰属
【1号棟】3LDK+下屋収納庫+主寝室には大型のWICなど収納面も豊富なお住まい。 広い敷地で、並列2台駐車も可能です。
【1号棟】3LDK+小上り、家事導線の取れた間取と下屋収納+主寝室にWICと豊富な収納もございます。 広い敷地で、2台駐車+駐輪場も問題ございません。
第三者が通り抜けができない、分譲地の方だけの道路です。小さなお子様が道路に飛び出しても抜け道ではないので安心です。
分譲地内には、専用のゴミ置場ございます。ダストBOX設置済で、カラスなどに荒らされる心配もございません。
フジイエ鎌ケ谷は耐震等級3の地震に強い安心のお住まいです。設計住宅性能評価・建設住宅性能評価を取得しており、設計段階から建設段階まで第三者機関の客観的な検査による品質・安全性を担保。万一のトラブル時には専門機関のサポートも利用でき、将来的な資産価値の維持にもつながります。
フジイエ鎌ケ谷3丁目のお住まいは、ZEH基準を超える断熱等級6級で暖かく、エネルギー消費量も少ない、お財布に優しいお住まいです。設計住宅性能評価・建設住宅性能評価を取得しております。設計段階から建設段階まで第三者機関の客観的な検査による品質・安全性を担保。
ジ設計企画はちょっとしたこだわりで角を丸く仕上げております。お子様にも安心ですし、優しい雰囲気が出るかと思います。ぜひフジイエの魅力をご確認ください。
1階の主窓には電動シャッターが付いており、天気が悪い日でも、窓を開けずにボタン一つで楽々開閉。 開閉の際に腰を痛めることなく負担なく、あると便利な設備の一つです。
システムキッチンには、深型の食洗器を標準でご用意しております。 浅型タイプとは違い、多くの食器を一気に洗浄・乾燥でき家事の負担を軽減します!
窓の樹脂サッシには、外壁側と室内側に合わせられる2色のカラーバリエーションサッシです。
フジイエの窓は、冬場に結露もしにくい樹脂複合サッシに、断熱効果もあるエコLow-Eガラス、アルゴンガス入りで外の冷気や家の温度を守ります。
給湯器には、排気熱を再利用してガス使用量と排気熱を大幅カットする「ECOジョーズ」。
物件詳細情報
物件No.20000433521
| 所在地 | 千葉県鎌ケ谷市鎌ケ谷3丁目 | ||
|---|---|---|---|
| 交通 | 京成松戸線「鎌ヶ谷大仏」駅徒歩5分 東武野田線「鎌ケ谷」駅徒歩22分 東武野田線「馬込沢」駅バス12分 バス停「配給所前」停歩3分 |
||
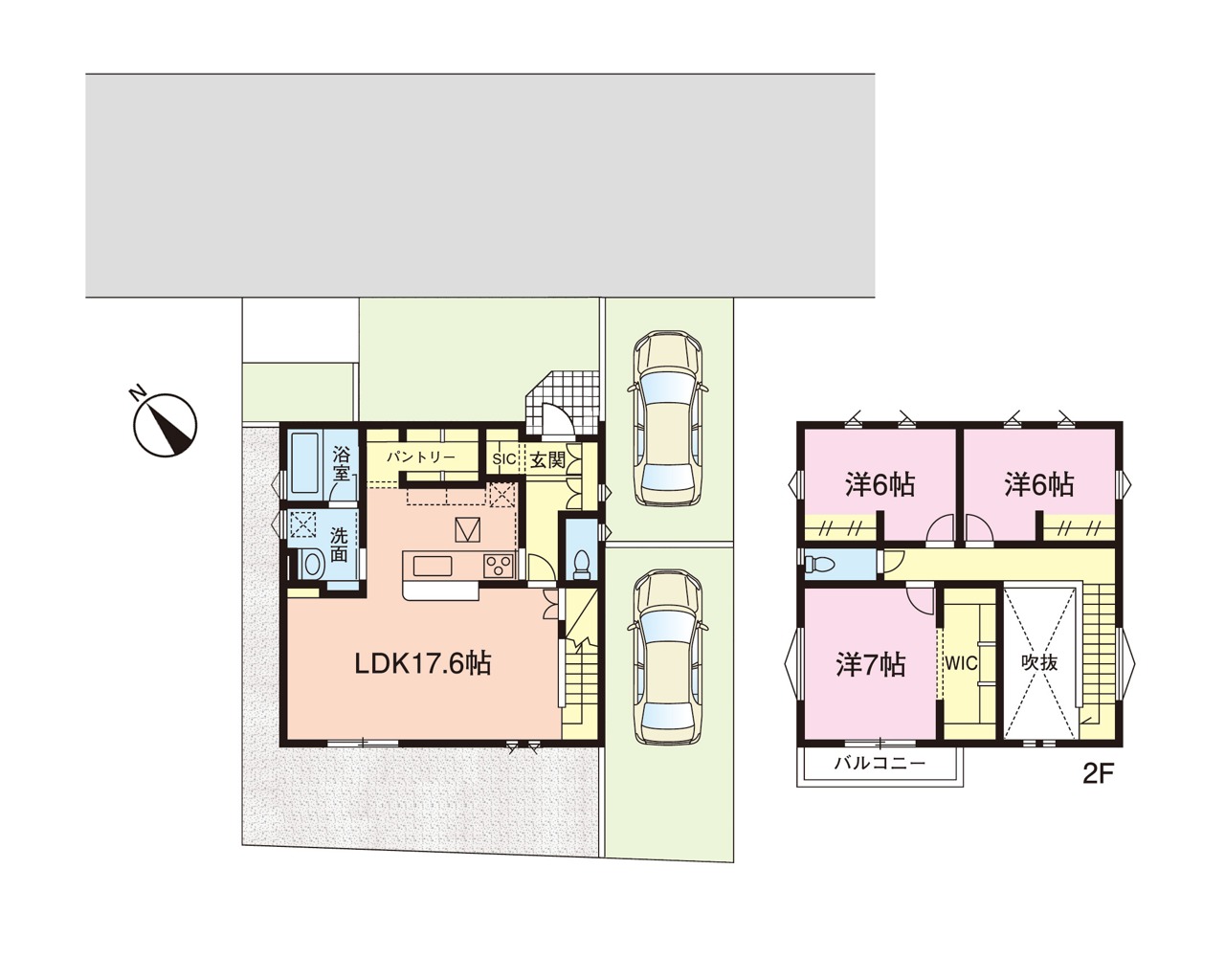
| 間取 | 3LDK (LDK19.8帖、洋室7.3帖、洋室6帖、洋室5.3帖) | ||
| 土地面積 | 140.23m² 実測 (ゴミ置場、道路、電柱用地は鎌ケ谷市へ帰属) | ||
| 建物面積 | 98.81m² | ||
| 販売戸数 | 1戸 | 総戸数 | 全8戸 |
| 構造・規模 | 木造 2階建て | 築年・入居 | 2026年6月上旬 |
| 建物現況 | 建築中 | 建築確認番号 | SJK-KX255837190号 |
| 駐車スペース | 2台可(カースペース) | 引渡時期 | 相談 |
| 施工会社 | フジ設計企画 | 地目 | 宅地 |
| 用途地域 | 第一種低層住居専用地域 | 建ぺい率 | 50% |
| 容積率 | 100% | 都市計画 | 市街化区域 |
| 権利種類 | 所有権 | 接道 | 北側5M公道に接道 |
| 小学校区 | 鎌ヶ谷東部小学校(400m) | 中学校区 | 鎌ケ谷市立第二中学校(560m) |
| 取引態様 | 売主 | ||
| 設備 | 公営水道、本下水、都市ガス フジイエの主な標準設備:1階掃出し窓電動シャッター、防犯ガラス(1Fの一部)、樹脂サッシペアガラス(ガス入)、全窓網戸、TVモニター付インターホン、システムキッチン、ガラストップコンロ、浄水器内蔵ハンドシャワー水洗、食器洗い乾燥機、カップボード、浴室暖房乾燥機、人工大理石浴槽、1F・2Fウォシュレット付きトイレ、ECOジョーズ給湯器他 |
||
| 省エネ性能表示 | エネルギー消費性能:★★★★ 断熱性能:6段階 |
||
こだわり項目
- ※価格は物件の代金総額を表示しており、消費税が課税される場合は税込み価格です。(1,000円未満は切り上げ。)
税率は引き渡し時期により異なりますので、各物件の詳細につきましてはお問い合わせください。 - ※敷地権利が借地権のものは価格に権利金を含みます。
- ※制作中に内容が変更される場合もありますので、あらかじめご了承ください。
- ※購入の前には物件内容や契約条件についてご自身で十分な確認をしていただくようにお願いいたします。
- ※完成予想図はいずれも外構、植栽、外観等実際のものとは多少異なることがあります。
- ※CG合成の画像の場合、実際とは多少異なる場合があります。
周辺地図
- 現地販売会
- 毎週土日祝開催 11:00〜17:00 事前に必ずお問い合わせください
周辺施設一覧
- ショッピングセンター
- スーパー
- コンビニ
- ドラッグストア
- ホームセンター
- 飲食店
- その他店舗
- 商店街
- 大学
- 専門学校
- 高校・高専
- 中学校
- 小学校
- 保育園
- 幼稚園
- 公民館・児童館
- 病院
- 郵便局
- 役所
- 図書館
- 金融機関
- 警察・消防
- 趣味・娯楽施設
- 公園・運動施設
- 周辺の街並み
- 駅
- その他
お問い合せ先
- 株式会社フジ設計企画
- お電話でのお問い合わせは
047-469-1800「ホームページを見た」とお問い合わせください - 千葉県船橋市西習志野4-12-12
- 免許番号:千葉県知事免許(8)第11427号
- フジ設計企画 トップページ
- 新築一戸建てをエリアから探す
- 鎌ケ谷市
- 鎌ケ谷
- フジイエ鎌ケ谷 家族みんなが一つになる家・全8区画の分譲地
































